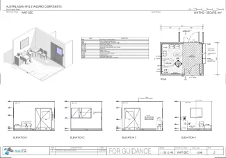
Waiting - Secure, 6m2

WAIT-SEC

Revision: 
2.0
Date published: 
01/03/2016

The secure waiting is an area for visitors to a mental health unit to wait in comfort prior to or during visits. The area will be secured and visitors will alert staff of their arrival to gain entry to the Unit. The waiting area will be located in close proximity to a reception area or staff station. Public amenties should be located in close proximity.

This Standard Component has been redocumented. During the process, the content has undergone a quality assurance process. The overall changes are minor in nature and do not represent a significant revision.

Room Data Sheet

Downloads
Room Data Sheet
Revision: 4.0
01/03/2016
PDF

Room Layout Sheet

Downloads
Room Layout Sheet
Revision: 2.0
01/03/2016
PDF

Project Resources

 

Archive

Find past versions of documents here

Downloads
Room Data Sheet
Revision: 5.0
20/03/2017
PDF
Room Layout Sheet
Revision: 3.0
20/03/2017
pdf
Room Data Sheet
Revision: 4.0
01/03/2016
PDF
Room Layout Sheet
Revision: 2.0
01/03/2016
pdf
Room Data Sheet
Revision: 3.0
27/03/2009
PDF
Room Layout Sheet
Revision: 1.0
23/07/2005
pdf

Retired Standard Components

Retired Standard Components

Webpage