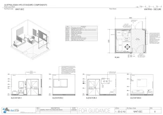
Waiting - Secure

WAIT-SEC

Revision: 
6.0
Date published: 
21/08/2025

The Waiting - Secure is an area provided for visitors to a Mental Health Unit to wait in comfort prior to or during visits with consumers. Visitors will alert staff of their arrival to gain entry to the unit.

Room Data Sheet

Downloads
Room Data Sheet
Revision: 6.0
21/08/2025
PDF

Room Layout Sheet

Downloads
Room Layout Sheet
Revision: 6.0
21/08/2025
PDF

Project Resources

 

Archive

Find past versions of documents here

Downloads
Room Data Sheet
Revision: 5.0
20/03/2017
PDF
Room Layout Sheet
Revision: 3.0
20/03/2017
pdf
Room Data Sheet
Revision: 4.0
01/03/2016
PDF
Room Layout Sheet
Revision: 2.0
01/03/2016
pdf
Room Data Sheet
Revision: 3.0
27/03/2009
PDF
Room Layout Sheet
Revision: 1.0
23/07/2005
pdf

Retired Standard Components

Retired Standard Components

Webpage