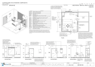
1 Bed Room - Mental Health, Nested Ensuite

Room Code: 
1BR-MH-NE
Revision: 
7.0
Date published: 
31/03/2026

The 1 Bed Room - Mental Health, Nested Ensuite provides a single occupancy bedroom for consumers in a mental health inpatient unit. The nested ensuite layout is used in conjunction with the Ensuite - Mental Health, Nested (ENS-MH-NE). Alternatively, an inboard ensuite layout may be provided (see 1BR-MH-IN).

NOTE: Rendered panoramas depict indicative colours and materials that have been selected to aid spatial understanding, provide contrast to support legibility, and meet Australian/New Zealand Standards and legal requirements. These visualisations are intended to support design discussions and do not prescribe finishes or FF&E specifications.

Downloads

Room Data Sheet
Revision: 7.0
31/03/2026
PDF
Room Layout Sheet
Revision: 7.0
31/03/2026
PDF

Archive

Room Data Sheet
Revision: 6.0
21/08/2025
PDF
Room Layout Sheet
Revision: 6.0
21/08/2025
PDF
Room Data Sheet
Revision: 5.0
04/07/2018
PDF
Room Layout Sheet
Revision: 4.0
04/07/2018
PDF
ROOM DATA SHEET
Revision: 4.0
20/03/2017
PDF
ROOM LAYOUT SHEET
Revision: 3.0
03/06/2005
PDF

Retired Standard Components

Retired Standard Components

Webpage