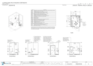
Ensuite - Mental Health, Nested

Room Code: 
ENS-MH-NE
Revision: 
5.0
Date published: 
31/03/2026

The Ensuite - Mental Health provides a shower, toilet and handwash basin for use by consumers in a mental health inpatient unit. The nested ensuite layout is used in conjunction with the 1 Bed Room - Mental Health, Nested Ensuite (1BR-MH-NE).

NOTE: Rendered panoramas depict indicative colours and materials that have been selected to aid spatial understanding, provide contrast to support legibility, and meet Australian/New Zealand Standards and legal requirements. These visualisations are intended to support design discussions and do not prescribe finishes or FF&E specifications.

Downloads

Room Data Sheet
Revision: 5.0
31/03/2026
PDF
Revision: 5.0
31/03/2026
PDF

Archive

Room Data Sheet
Revision: 4.0
21/08/2025
PDF
Room Layout Sheet
Revision: 4.0
21/08/2025
PDF
Room Data Sheet
Revision: 3.0
04/07/2018
PDF
Room Layout Sheet
Revision: 2.0
04/07/2018
PDF
Room Data Sheet
Revision: 2.0
20/03/2017
PDF
Room Layout Sheet
Revision: 1.0
23/05/2005
PDF
Ensuite - Mental Health - Inboard
Revision: 1.0
07/06/2005
PDF

Retired Standard Components

Retired Standard Components

Webpage