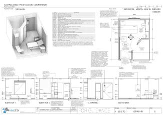
1 Bed Room - Mental Health, Inboard Ensuite

Room Code: 
1BR-MH-IN
Revision: 
7.0
Date published: 
31/03/2026

The 1 Bed Room - Mental Health, Inboard Ensuite provides a single occupancy bedroom for consumers in a mental health inpatient unit. The inboard ensuite layout is used in conjunction with the Ensuite - Mental Health, Inboard (ENS-MH-IN). Alternatively, a nested ensuite layout may be provided (see 1BR-MH-NE).

NOTE: Rendered panoramas depict indicative colours and materials that have been selected to aid spatial understanding, provide contrast to support legibility, and meet Australian/New Zealand Standards and legal requirements. These visualisations are intended to support design discussions and do not prescribe finishes or FF&E specifications.

Downloads

Room Data Sheet
Revision: 7.0
31/03/2026
PDF
Room Layout Sheet
Revision: 7.0
31/03/2026
PDF

Archive

Room Data Sheet
Revision: 6.0
21/08/2025
PDF
Room Layout Sheet
Revision: 6.0
21/08/2025
PDF
Room Data Sheet
Revision: 5.0
04/07/2018
PDF
Room Layout Sheet
Revision: 4.0
04/07/2018
PDF
ROOM DATA SHEET
Revision: 4.0
20/03/2017
PDF
ROOM LAYOUT SHEET
Revision: 3.0
20/03/2017
PDF
Room Data Sheet
Revision: 3.0
01/03/2016
PDF
Room Layout Sheet
Revision: 2.0
01/03/2016
PDF
1 Bed Room - Mental Health
Revision: 2.0
10/06/2015
PDF
1 Bed Room - Mental Health - Inoard Ensuite
Revision: 1.0
03/06/2005
PDF

Retired Standard Components

Retired Standard Components

Webpage