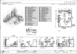
Consult Room - ENT / Ophthalmology

CONS-ENT-OP

Revision: 
8.0
Date published: 
19/08/2025

The Consult Room ENT/ Ophthalmology provides the space and facilities for consultation, assessment, examination and minor treatment and observation of patients for acute ENT and Ophthalmology related injury and illness with specialised equipment.

Room Data Sheet

Downloads
Room Data Sheet
Revision: 8.0
19/08/2025
PDF

Room Layout Sheet

Downloads
Room Layout Sheet
Revision: 8.0
19/08/2025
PDF

Project Resources

 

Archive

Find past versions of documents here

Downloads
Room Data Sheet
Revision: 6.0
29/05/2019
PDF
Room Layout Sheet
Revision: 7.0
29/05/2019
pdf
Room Data Sheet
Revision: 5.0
20/03/2017
PDF
Room Layout Sheet
Revision: 6.0
20/03/2017
pdf
Room Data Sheet
Revision: 4.0
01/03/2016
PDF
Room Layout Sheet
Revision: 5.0
01/03/2016
pdf
Room Data Sheet
Revision: 3.0
01/04/2009
PDF
Room Layout Sheet
Revision: 4.0
10/12/2008
pdf

Retired Standard Components

Retired Standard Components

Webpage