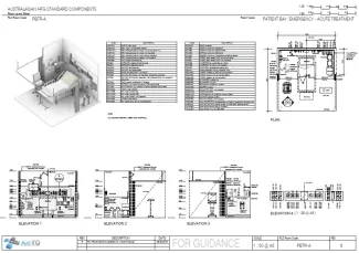
Patient Bay - Emergency, Acute Treatment

Room Code: 
PTB-E-ACU
Revision: 
8.0
Date published: 
31/03/2026

The Patient Bay - Emergency, Acute Treatment provides the space, equipment and services for assessment, treatment and observation of patients with acute conditions and injuries within the Emergency Unit.

NOTE: Rendered panoramas depict indicative colours and materials that have been selected to aid spatial understanding, provide contrast to support legibility, and meet Australian/New Zealand Standards and legal requirements. These visualisations are intended to support design discussions and do not prescribe finishes or FF&E specifications.

Downloads

Room Data Sheet
Revision: 8.0
31/03/2026
PDF
Room Layout Sheet
Revision: 8.0
31/03/2026
PDF

Archive

Room Data Sheet
Revision: 7.0
18/08/2025
PDF
Room Layout Sheet
Revision: 7.0
18/08/2025
PDF
Room Data Sheet
Revision: 5.0
29/05/2019
PDF
Room Layout Sheet
Revision: 6.0
29/05/2019
PDF
Room Data Sheet
Revision: 4.0
20/03/2017
PDF
Room Layout Sheet
Revision: 5.0
20/03/2017
PDF
Room Data Sheet
Revision: 3.0
01/03/2016
PDF
Room Layout Sheet
Revision: 4.0
01/03/2016
PDF
Room Data Sheet
Revision: 2.0
20/05/2005
PDF
Room Layout Sheet
Revision: 3.0
20/05/2005
PDF

Retired Standard Components

Retired Standard Components

Webpage