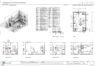
Consult Room - ENT/ Ophthalmology

CONS-ENT-OP

Revision: 
5.0
Date published: 
01/03/2016

The Consult Room - ENT/ Ophthalmology will provide for private consultation and examination of patients for ENT/ Ophthalmology using specialised equipment. The consult room may also be used for general consultations.

This Standard Component has been reviewed, redocumented and reissued. These changes include findings from recent projects and post occupancy evaluations. In most cases, the changes are significant.

Room Data Sheet

Downloads
Room Data Sheet
Revision: 4.0
01/03/2016
PDF

Room Layout Sheet

Downloads
Room Layout Sheet
Revision: 5.0
01/03/2016
PDF

Project Resources

 

Archive

Find past versions of documents here

Downloads
Room Data Sheet
Revision: 6.0
29/05/2019
PDF
Room Layout Sheet
Revision: 7.0
29/05/2019
pdf
Room Data Sheet
Revision: 5.0
20/03/2017
PDF
Room Layout Sheet
Revision: 6.0
20/03/2017
pdf
Room Data Sheet
Revision: 4.0
01/03/2016
PDF
Room Layout Sheet
Revision: 5.0
01/03/2016
pdf
Room Data Sheet
Revision: 3.0
01/04/2009
PDF
Room Layout Sheet
Revision: 4.0
10/12/2008
pdf

Retired Standard Components

Retired Standard Components

Webpage