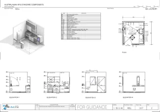
ADL Laundry

ADLL

Revision: 
4.0
Date published: 
27/04/2021

The ADL Laundry provides domestic facilities for the training and assessment of patients in Activities of Daily Living (ADL) tasks.

The room will include a domestic washing machine and dryer which, if front loading models are selected, may be placed on plinths to raise machines to an accessible height to support common ADL training and assessment tasks as per service requirements. A laundry tub and storage for ironing equipment are also provided.

Additional Considerations:

  • An operational model for responding to calls from staff/patients will be needed to support the inclusion of a nurse call system and is to be determined based on service requirements. If multiple ADL rooms are combined into an ADL suite nurse call buttons can be rationalised into a central location.
  • The space may be provided as an open bay that is collocated with other ADL rooms. If open, the impact of noise on adjacent areas must be considered.

Room Data Sheet

Downloads
Room Data Sheet
Revision: 4.0
27/04/2021
PDF

Room Layout Sheet

Downloads
Room Layout Sheet
Revision: 4.0
27/04/2021
PDF

Project Resources

 

Archive

Find past versions of documents here

Downloads
Room Data Sheet
Revision: 3.0
20/03/2017
PDF
Room Layout Sheet
Revision: 3.0
20/03/2017
pdf
Room Data Sheet
Revision: 2.0
01/03/2016
PDF
Room Layout Sheet
Revision: 2.0
01/03/2016
pdf
Room Data Sheet
Revision: 1.0
04/08/2005
PDF
Room Layout Sheet
Revision: 1.0
13/07/2005
pdf

Retired Standard Components

Retired Standard Components

Webpage