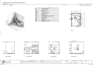
Laundry - Patient, 6m2
LAUN-PT
Revision:
4.0
Date published:
22/03/2017
Domestic style laundry for patient use. The room will include a bench, laundry tub, domestic style washing machine, dryer and ironing facilities.
This Standard Component has been reviewed, redocumented and reissued. The changes include findings from recent projects and post occupancy evaluations. In most cases, the changes are significant.
Room Data Sheet
Room Layout Sheet
Downloads

Archive
Find past versions of documents here
Retired Standard Components
Retired Standard Components