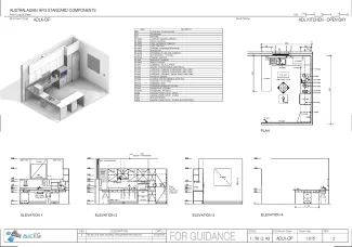
ADL Kitchen - Open Bay

ADLK-OP

Revision: 
2.0
Date published: 
01/03/2016

An accessible kitchen for 'activities of daily living' assessment and training. The Kitchen will include benches, sink, cooktop, wall oven/grill, rangehood, microwave , wheelchair accessible storage, and refrigerator/ freezer.
 

This Standard Component has been reviewed, redocumented and reissued. These changes include findings from recent projects and post occupancy evaluations. In most cases, the changes are significant.

Room Data Sheet

Downloads
Room Data Sheet
Revision: 2.0
01/03/2016
PDF

Room Layout Sheet

Downloads
Room Layout Sheet
Revision: 2.0
01/03/2016
PDF

Project Resources

 

Archive

Find past versions of documents here

Downloads
Room Data Sheet
Revision: 3.0
20/03/2017
PDF
Room Layout Sheet
Revision: 3.0
20/03/2017
pdf
Room Data Sheet
Revision: 2.0
01/03/2016
PDF
Room Layout Sheet
Revision: 2.0
01/03/2016
pdf
Room Data Sheet
Revision: 1.0
04/08/2005
PDF
Room Layout Sheet
Revision: 1.0
13/07/2005
pdf

Retired Standard Components

Retired Standard Components

Webpage