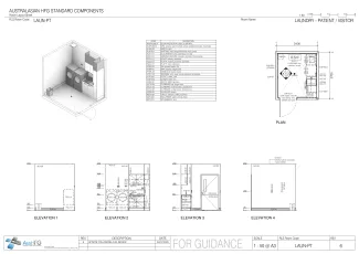
Laundry - Patient / Visitor

LAUN-PT

Revision: 
6.0
Date published: 
04/12/2025

The Laundry - Patient / Visitor provides space and amenities for patient and/or visitor use, including a washing machine, a dryer, a
laundry sink, bench space and storage for a small amount of detergents and equipment such as an iron, distilled water, ironing board
and folding drying rack.

Room Data Sheet

Downloads
Room Data Sheet
Revision: 6.0
04/12/2025
PDF

Room Layout Sheet

Downloads
Room Layout Sheet
Revision: 6.0
04/12/2025
PDF

Project Resources

 

Archive

Find past versions of documents here

Downloads
ROOM DATA SHEET
Revision: 5.0
20/03/2017
PDF
ROOM LAYOUT SHEET
Revision: 4.0
20/03/2017
pdf
Room Data Sheet
Revision: 4.0
01/03/2016
PDF
Room Layout Sheet
Revision: 3.0
01/03/2016
pdf
Room Data Sheet
Revision: 3.0
01/04/2009
PDF
Room Layout Sheet
Revision: 2.0
10/12/2008
pdf

Retired Standard Components

Retired Standard Components

Webpage