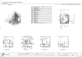
Ensuite - Birthing Room, Alternative, 10m2

ENS-BR-B

Revision: 
2.0
Date published: 
01/03/2016

This ensuite is attached to a birthing room. The area and layout must accommodate an assisting nurse. The ensuite will include a shower, handbasin, toilet and an island bath.
 

This Standard Component has been redocumented. During the process, the content has undergone a quality assurance process. The overall changes are minor in nature and do not represent a significant revision.

Room Data Sheet

Downloads
Room Data Sheet
Revision: 2.0
01/03/2016
PDF

Room Layout Sheet

Downloads
Room Layout Sheet
Revision: 2.0
01/03/2016
PDF

Project Resources

 

Archive

Find past versions of documents here

Downloads
Room Data Sheet
Revision: 2.0
01/03/2016
PDF
Room Layout Sheet
Revision: 2.0
01/03/2016
pdf
Room Data Sheet
Revision: 1.0
04/08/2005
PDF
Room Layout Sheet
Revision: 1.0
10/06/2005
pdf

Retired Standard Components

Retired Standard Components

Webpage