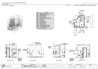
Ensuite - Mental Health - Inboard, 5m2

ENS-MH-A

Date published: 
27/03/2017

The Ensuite - Mental Health will provide a shower, toilet and hand basin for use by patients in a mental health inpatient unit.

Room Data Sheet

Downloads
Room Data Sheet
Revision: 4.0
04/07/2018
PDF

Room Layout Sheet

Downloads
Room Layout Sheet
Revision: 4.0
04/07/2018
PDF

Project Resources

 

Archive

Find past versions of documents here

Downloads
Room Data Sheet
Revision: 4.0
04/07/2018
PDF
Room Layout Sheet
Revision: 4.0
04/07/2018
pdf
Room Data Sheet
Revision: 3.0
20/03/2017
PDF
Room Layout Sheet
Revision: 3.0
20/03/2017
pdf
Room Data Sheet
Revision: 2.0
01/03/2016
PDF
Room Layout Sheet
Revision: 2.0
01/03/2016
pdf
Ensuite - Mental Health
Revision: 1.0
07/06/2005
PDF
Ensuite - Mental Health - Inboard
Revision: 1.0
22/05/2005
pdf

Retired Standard Components

Retired Standard Components

Webpage