Store - Accountable Drugs

STAD

Revision: 
4.0
Date published: 
27/04/2021

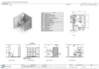
The Store – Accountable Drugs is a strongroom located within the Pharmacy Unit for the storage of accountable (Schedule 8) drugs and medications and provides a secure caged area for assembling orders.

This room is to comply with jurisdictional legislation and public health facility policy, including any special provisions for refrigerated medicines. The strong room should be designed in collaboration with an expert security consultant with assessment of the risks for the particular site.

Additional Design Considerations:

  • The strong room should be independent of the rest of the building structure with no beams or columns passing through the ceiling, walls or floor.
  • The ceiling walls and floor should be built utilisiing suitable construction methods, e.g. reinforced concrete or steel plate modular forms (the wall thickness shown in this Standard Component is indicative only).
  • A gate door is to be provided for security when the main door is open. The security door should be torch and drill resistant, fitted with an appropriate locking mechanism incorporating duress features and an internal release mechanism in case persons are trapped within.
  • The strongroom will require adequate ventilation and a torch and drill resistant breather tube must be fitted to comply with fire regulations.
  • Security monitoring and detection equipment should be incorporated into the alarm system, to detect any attack on the structure.
  • A telephone should be installed for staff safety

Room Data Sheet

Downloads
Room Data Sheet
Revision: 4.0
27/04/2021
PDF

Room Layout Sheet

Downloads
Room Layout Sheet
Revision: 4.0
27/04/2021
PDF

Project Resources

 

Archive

Find past versions of documents here

Downloads
Room Data Sheet
Revision: 3.0
20/03/2017
PDF
Room Layout Sheet
Revision: 3.0
20/03/2017
pdf
Room Data Sheet
Revision: 2.0
01/03/2016
PDF
Room Layout Sheet
Revision: 2.0
01/03/2016
pdf
Room Data Sheet
Revision: 1.0
04/08/2005
PDF
Room Layout Sheet
Revision: 1.0
04/08/2005
pdf

Retired Standard Components

Retired Standard Components

Webpage