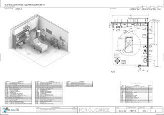
Patient Bay - Resuscitation, 25m2

PBTR-R

Revision: 
4.0
Date published: 
01/03/2016

A patient bed bay for assessment, resuscitation and treatment of patients with critical conditions, located within the Emergency Unit. The Resuscitation and diagnostic equipment should be located in close proximity which may include ventilator, cardiac pacemaking equipment and mobile X-ray machine.
 

This Standard Component has been redocumented. During the process, the content has undergone a quality assurance process. The overall changes are minor in nature and do not represent a significant revision.

Room Data Sheet

Downloads
Room Data Sheet
Revision: 3.0
01/03/2016
PDF

Room Layout Sheet

Downloads
Room Layout Sheet
Revision: 4.0
01/03/2016
PDF

Project Resources

 

Archive

Find past versions of documents here

Downloads
Room Data Sheet
Revision: 5.0
29/05/2019
PDF
Room Layout Sheet
Revision: 6.0
29/05/2019
pdf
Room Data Sheet
Revision: 4.0
20/03/2017
PDF
Room Layout Sheet
Revision: 5.0
20/03/2017
pdf
Room Data Sheet
Revision: 3.0
01/03/2016
PDF
Room Layout Sheet
Revision: 4.0
01/03/2016
pdf
Room Data Sheet
Revision: 2.0
20/05/2005
PDF
Room Layout Sheet
Revision: 3.0
16/05/2005
pdf

Retired Standard Components

Retired Standard Components

Webpage