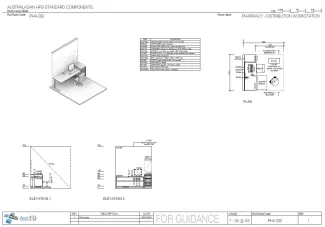
Pharmacy - Distribution Workstation

PHA-DB

Revision: 
1.0
Date published: 
27/04/2021

The Distribution Workstation provides workspace to sort and process dispensed medications to be distributed from the Pharmacy to clinical units (e.g. imprest medications) and may be used to prepare specialised packs (e.g. resuscitation trolley supplies).

Additional Considerations:

  • Ready access to bulk store and refrigerated storage is required from this area.
  • Direct access to a dispatch/collection area is required for holding items prior to delivery.
  • Printer and telephone facilities to be shared between multiple workstations. A Multifunction device is to be in close proximity to the distribution area.
  • Ensure adequate lighting over workspace.

Room Data Sheet

Downloads
Room Data Sheet
Revision: 1.0
27/04/2021
PDF

Room Layout Sheet

Downloads
Room Layout Sheet
Revision: 1.0
27/04/2021
PDF

Project Resources

 

Archive

Find past versions of documents here

Downloads

Retired Standard Components

Retired Standard Components

Webpage