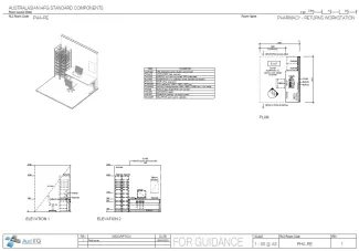
Pharmacy - Returns Workstation

Room Code: 
PHA-RE
Revision: 
1.0
Date published: 
07/04/2026

The Returns Workstation provides workspace to sort and process medication returns from within the hospital that are to be returned to stock or sent for disposal. Storage is required to accommodate the returns before they are processed.

Additional Considerations:

  • Ready access to refrigerated storage and disposal room is required from this area.
  • Printer and telephone facilities to be shared between multiple workstations. A Multifunction device is to be in close proximity to the returns area.
  • Ensure adequate lighting over workspace.

Downloads

Room Data Sheet
Revision: 1.0
07/04/2026
PDF
Room Data Sheet
Revision: 1.0
27/04/2021
PDF ICS 1.11
XLSX ICS 1.11
Room Layout Sheet
Revision: 1.0
27/04/2021
PDF ICS 1.11

Archive

Retired Standard Components

Retired Standard Components

Webpage