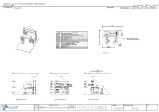
Pharmacy - Dispensing Workstation

PHA-DS

Revision: 
1.0
Date published: 
27/04/2021

The Dispensing Workstation provides workspace to prepare, assemble and label patient medications for dispensing to inpatients and outpatients. The workstations can be configured to provide dispensing/assembly stations and a checking station as required.

Dispensing workstations should be arranged to support effective workflows, reduce travel time and avoid error. These stations should be arranged such that extended reaches are avoided. Where dispensing workstations are arranged adjacent to each other, corridors in between them should be wide enough to provide unobstructed movement for staff and trolleys.

Additional Considerations:

  • Ready access to the bulk store and refrigerated storage is required.
  • Printer and telephone facilities to be shared between multiple workstations. A Multifunction device is to be in close proximity to the dispensing area.
  • Ensure adequate lighting over workspace - task lighting may be required.

Room Data Sheet

Downloads
Room Data Sheet
Revision: 1.0
27/04/2021
PDF

Room Layout Sheet

Downloads
Room Layout Sheet
Revision: 1.0
27/04/2021
PDF

Project Resources

 

Archive

Find past versions of documents here

Downloads

Retired Standard Components

Retired Standard Components

Webpage