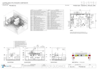
Patient Bay - Neonatal, Special Care

PTB-NEO-SC

Revision: 
5.0
Date published: 
04/12/2025

The Patient Bay - Neonatal, Special Care provides the space, services and facilities for the medical care of newborns that are
premature and/or not sufficiently stable to be discharged.

Room Data Sheet

Downloads
Room Data Sheet
Revision: 5.0
04/12/2025
PDF

Room Layout Sheet

Downloads
Room Layout Sheet
Revision: 5.0
04/12/2025
PDF

Project Resources

 

Archive

Find past versions of documents here

Downloads
Room Data Sheet
Revision: 4.0
13/05/2020
PDF
Room Layout Sheet
Revision: 4.0
13/05/2020
pdf
Room Data Sheet
Revision: 3.0
20/03/2017
PDF
Room Layout Sheet
Revision: 3.0
20/03/2017
pdf
Room Data Sheet
Revision: 2.0
01/03/2016
PDF
Room Layout Sheet
Revision: 2.0
01/03/2016
pdf
Room Data Sheet
Revision: 1.0
04/08/2005
PDF
Room Layout Sheet
Revision: 1.0
01/07/2005
pdf

Retired Standard Components

Retired Standard Components

Webpage