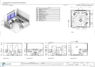
Office - 3 Person Shared, 15m2

OFF-3P

Revision: 
5.0
Date published: 
01/03/2016

A shared sffice for up to three staff and used to carry out administrative functions in a degree of privacy. An external outlook is desirable.
 

This Standard Component has been reviewed, redocumented and reissued. These changes include findings from recent projects and post occupancy evaluations. In most cases, the changes are significant.

Room Data Sheet

Downloads
Room Data Sheet
Revision: 4.0
01/03/2016
PDF

Room Layout Sheet

Downloads
Room Layout Sheet
Revision: 5.0
01/03/2016
PDF

Project Resources

 

Archive

Find past versions of documents here

Downloads
Room Data Sheet
Revision: 4.0
01/03/2016
PDF
Room Layout Sheet
Revision: 5.0
01/03/2016
pdf
Room Data Sheet
Revision: 3.0
01/04/2009
PDF
Room Layout Sheet
Revision: 4.0
10/12/2008
pdf

Retired Standard Components

Retired Standard Components

Webpage