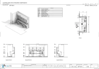
Office - Write-up, 5m2

OFF-WI-5

Revision: 
2.0
Date published: 
23/03/2017

This space provides a write-up bench for use by members of the patient care team to review and write-up patient records, enter patient data on computer and make telephone calls. If located within the Operating Unit it may also include an optional area for porters to wait until paged or called by staff.
 

This is a new Standard Component.

Room Data Sheet

Downloads
Room Data Sheet
Revision: 2.0
20/03/2017
PDF

Room Layout Sheet

Downloads
Room Layout Sheet
Revision: 2.0
20/03/2017
PDF

Project Resources

 

Archive

Find past versions of documents here

Downloads
Room Data Sheet
Revision: 1.0
01/03/2016
PDF
Room Layout Sheet
Revision: 1.0
01/03/2016
pdf

Retired Standard Components

Retired Standard Components

Webpage