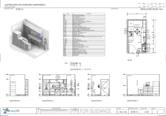
Medication Room, 10m2

STDR-10

Revision: 
2.0
Date published: 
01/03/2016

The medication room is used for the storage of drugs and medications where minimal clinical consumables are used (e.g. Mental Health Unit) or as defined by local arrangements.

This Standard Component has been reviewed, redocumented and reissued. These changes include findings from recent projects and post occupancy evaluations. In most cases, the changes are significant.

Room Data Sheet

Downloads
Room Data Sheet
Revision: 2.0
01/03/2016
PDF

Room Layout Sheet

Downloads
Room Layout Sheet
Revision: 2.0
01/03/2016
PDF

Project Resources

 

Archive

Find past versions of documents here

Downloads
Room Data Sheet
Revision: 2.0
01/03/2016
PDF
Room Layout Sheet
Revision: 2.0
01/03/2016
pdf
Room Data Sheet
Revision: 1.0
04/08/2005
PDF
Room Layout Sheet
Revision: 1.0
11/07/2005
pdf

Retired Standard Components

Retired Standard Components

Webpage