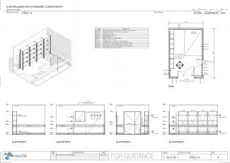
Store - Equipment, 14m2

STEQ-14

Revision: 
6.0
Date published: 
29/06/2021

A secure room for the storage and recharging of mobile equipment when not in use.

Clear space is required for parking mobile equipment including IV poles, wheelchairs, patient transfer equipment, trolleys and commode chairs. Hooks may be provided for hanging equipment and rails may be provided to mount equipment whilst recharging.

Additional Design Considerations:

  • Minimum and maximum shelving heights to suit local WHS and infection control policies, as well as fire safety requirements (e.g. the top of stored products is to be no nearer than 500mm to sprinkler deflectors).

Room Data Sheet

Downloads
Room Data Sheet
Revision: 6.0
29/06/2021
PDF

Room Layout Sheet

Downloads
Room Layout Sheet
Revision: 5.0
29/06/2021
PDF

Project Resources

 

Archive

Find past versions of documents here

Downloads
Room Data Sheet
Revision: 5.0
20/03/2017
PDF
Room Layout Sheet
Revision: 4.0
20/03/2017
pdf
Room Data Sheet
Revision: 4.0
01/03/2016
PDF
Room Layout Sheet
Revision: 3.0
01/03/2016
pdf
Room Data Sheet
Revision: 3.0
27/03/2009
PDF
Room Layout Sheet
Revision: 2.0
14/08/2008
pdf

Retired Standard Components

Retired Standard Components

Webpage