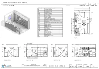
Clean Utility/ Medication Room, 14m2

CLUR-14

Revision: 
5.0
Date published: 
01/03/2016

A room for the storage of clean and sterile consumablesand the secure storage and preparation of medications, including intravenous fluids. It may also function as an alternative storage area for the medication trolley.

This Standard Component has been reviewed, redocumented and reissued. These changes include findings from recent projects and post occupancy evaluations. In most cases, the changes are significant.

Room Data Sheet

Downloads
Room Data Sheet
Revision: 4.0
01/03/2016
PDF

Room Layout Sheet

Downloads
Room Layout Sheet
Revision: 5.0
01/03/2016
PDF

Project Resources

 

Archive

Find past versions of documents here

Downloads
Room Data Sheet
Revision: 4.0
01/03/2016
PDF
Room Layout Sheet
Revision: 5.0
01/03/2016
pdf
Room Data Sheet
Revision: 3.0
01/04/2009
PDF
Room Layout Sheet
Revision: 4.0
10/12/2008
pdf

Retired Standard Components

Retired Standard Components

Webpage