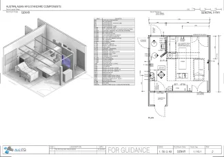
General X-ray

GENXR

Revision: 
2.0
Date published: 
01/03/2016

General X-ray is a room used for general radiographic procedures and will be located within a medical imaging unit or within an emergency care area.
 

This Standard Component has been redocumented. During the process, the content has undergone a quality assurance process. The overall changes are minor in nature and do not represent a significant revision.

Room Data Sheet

Downloads
Room Data Sheet
Revision: 2.0
01/03/2016
PDF

Room Layout Sheet

Downloads
Room Layout Sheet
Revision: 2.0
01/03/2016
PDF

Project Resources

 

Archive

Find past versions of documents here

Downloads
Room Data Sheet
Revision: 4.0
29/05/2019
PDF
Room Layout Sheet
Revision: 4.0
29/05/2019
pdf
Room Data Sheet
Revision: 3.0
20/03/2017
PDF
Room Layout Sheet
Revision: 3.0
20/03/2017
pdf
Room Data Sheet
Revision: 2.0
01/03/2016
PDF
Room Layout Sheet
Revision: 2.0
01/03/2016
pdf
Room Data Sheet
Revision: 1.0
04/08/2005
PDF
Room Layout Sheet
Revision: 1.0
01/07/2005
pdf

Retired Standard Components

Retired Standard Components

Webpage