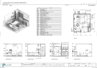
Ultrasound

ULTR

Revision: 
3.0
Date published: 
01/03/2016

Room for diagnostic ultrasound procedures located close to patient toilet and change rooms. The room will require access for patients on hospital beds.
 

This Standard Component has been redocumented. During the process, the content has undergone a quality assurance process. The overall changes are minor in nature and do not represent a significant revision.

Room Data Sheet

Downloads
Room Data Sheet
Revision: 2.0
01/03/2016
PDF

Room Layout Sheet

Downloads
Room Layout Sheet
Revision: 3.0
01/03/2016
PDF

Project Resources

 

Archive

Find past versions of documents here

Downloads
Room Data Sheet
Revision: 4.0
29/05/2019
PDF
Room Layout Sheet
Revision: 5.0
29/05/2019
pdf
Room Data Sheet
Revision: 3.0
20/03/2017
PDF
Room Layout Sheet
Revision: 4.0
20/03/2017
pdf
Room Data Sheet
Revision: 2.0
01/03/2016
PDF
Room Layout Sheet
Revision: 3.0
01/03/2016
pdf
Room Data Sheet
Revision: 1.0
11/05/2006
PDF
Room Layout Sheet
Revision: 2.0
27/04/2006
pdf

Retired Standard Components

Retired Standard Components

Webpage