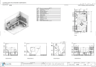
X-ray Viewing and Reporting

XRRR

Revision: 
4.0
Date published: 
01/03/2016

Room within a diagnostic unit for reviewing and reporting of patient imaging film or computerised images and to write reports.
 

This Standard Component has been redocumented. During the process, the content has undergone a quality assurance process. The overall changes are minor in nature and do not represent a significant revision.

Room Data Sheet

Downloads
Room Data Sheet
Revision: 3.0
01/03/2016
PDF

Room Layout Sheet

Downloads
Room Layout Sheet
Revision: 4.0
01/03/2016
PDF

Project Resources

 

Archive

Find past versions of documents here

Downloads
Room Data Sheet
Revision: 3.0
01/03/2016
PDF
Room Layout Sheet
Revision: 4.0
01/03/2016
pdf
Room Data Sheet
Revision: 2.0
08/06/2005
PDF
Room Layout Sheet
Revision: 3.0
06/06/2005
pdf

Retired Standard Components

Retired Standard Components

Webpage