Ensuite - Special, 6m2

ENS-SP

Revision: 
5.0
Date published: 
28/03/2017

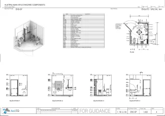
An Ensuite - Special (previously known as 'Ensuite - Super') is for a patient to wash, shave, groom themselves, shower and use the toilet, either independently or with assistance. The Ensuite - Special is associated with the 1 Bed Room - Special and the additional area and layout will facilitate two assisting nurses, patient lifter and wheelchair access. 
 

This Standard Component has been redocumented. During the process, the content has undergone a quality assurance process. The overall changes are minor in nature and do not represent a significant revision.

Room Data Sheet

Downloads
Room Data Sheet
Revision: 4.0
20/03/2017
PDF

Room Layout Sheet

Downloads
Room Layout Sheet
Revision: 5.0
20/03/2017
PDF

Project Resources

 

Archive

Find past versions of documents here

Downloads
Room Data Sheet
Revision: 3.0
01/03/2016
PDF
Room Layout Sheet
Revision: 4.0
01/03/2016
pdf
Room Data Sheet
Revision: 2.0
20/05/2005
PDF
Room Layout Sheet
Revision: 3.0
19/05/2005
pdf

Retired Standard Components

Retired Standard Components

Webpage