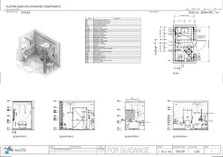
Ensuite - Bariatric, 7m2

ENS-BA

Revision: 
1.0
Date published: 
01/03/2016

An Ensuite - Bariatric is designed to meet the needs of bariatric (obese or morbidly obese) patients allowing the patient to wash, shave, shower and use the toilet, either independently or with assistance.

The Ensuite - Bariatric is associated with the 1 Bed Room - Bariatric (this room is currently being developed). The area and layout must accommodate two assisting nurses and a shower commode with bariatric capability. The ensuite and bed room will need to be planned as an integral suite so the use of a ceiling mounted hoist is optimised across the two rooms.

This is a new Standard Component.

Room Data Sheet

Downloads
Room Data Sheet
Revision: 1.0
01/03/2016
PDF

Room Layout Sheet

Downloads
Room Layout Sheet
Revision: 1.0
01/03/2016
PDF

Project Resources

 

Archive

Find past versions of documents here

Downloads
Room Data Sheet
Revision: 2.0
20/03/2017
PDF
Room Layout Sheet
Revision: 2.0
20/03/2017
pdf
Room Data Sheet
Revision: 1.0
01/03/2016
PDF
Room Layout Sheet
Revision: 1.0
01/03/2016
pdf

Retired Standard Components

Retired Standard Components

Webpage