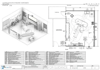
CT Imaging Room

CTIR

Revision: 
2.0
Date published: 
19/05/2025

The CT Imaging Room is designed for undertaking Computed Tomography (CT) scanning with direct overview and access from the adjoining CT Control Room.

Room Data Sheet

Downloads
Room Data Sheet
Revision: 2.0
19/05/2025
PDF

Room Layout Sheet

Downloads
Room Layout Sheet
Revision: 2.0
19/05/2025
PDF

Project Resources

 

Archive

Find past versions of documents here

Downloads
Room Data Sheet
Revision: 1.0
29/05/2019
PDF
Room Layout Sheet
Revision: 1.0
29/05/2019
pdf
Room Data Sheet
Revision: 3.0
20/03/2017
PDF
Room Layout Sheet
Revision: 3.0
20/03/2017
pdf
Room Data Sheet
Revision: 2.0
01/03/2016
PDF
Room Layout Sheet
Revision: 2.0
01/03/2016
pdf
Room Data Sheet
Revision: 1.0
04/08/2005
PDF
Room Layout Sheet
Revision: 1.0
01/07/2005
pdf

Retired Standard Components

Retired Standard Components

Webpage