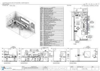
CT Imaging Control Room

CTIR-CTRL

Revision: 
5.0
Date published: 
16/05/2025

The CT Control Room provides the space and equipment for remote control of CT imaging equipment, and amenities for review of images and reporting.

Room Data Sheet

Downloads
Room Data Sheet
Revision: 5.0
16/05/2025
PDF

Room Layout Sheet

Downloads
Room Layout Sheet
Revision: 5.0
16/05/2025
PDF

Project Resources

 

Archive

Find past versions of documents here

Downloads
Room Data Sheet
Revision: 4.0
29/05/2019
PDF
Room Layout Sheet
pdf
Room Data Sheet
Revision: 3.0
20/03/2017
PDF
Room Layout Sheet
Revision: 3.0
20/03/2017
pdf
Room Data Sheet
Revision: 2.0
01/03/2016
PDF
Room Layout Sheet
Revision: 2.0
01/03/2016
pdf
Room Data Sheet
Revision: 1.0
04/08/2005
PDF
Room Layout Sheet
Revision: 1.0
01/07/2005
pdf

Retired Standard Components

Retired Standard Components

Webpage