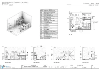
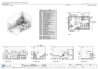
Clean-Up Room
CLNUP
Revision:
2.0
Date published:
07/05/2025
The Clean-Up Room provides space and amenity for gross decontamination of instruments used in Operating Rooms or Procedure Rooms, storage for cleaning supplies and equipment, as well as storage of waste prior to collection.
Room Data Sheet
Room Layout Sheet
Downloads

Archive
Find past versions of documents here
Retired Standard Components
Retired Standard Components