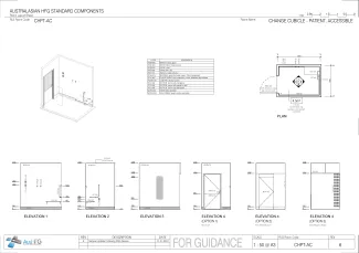
Change Cubicle - Patient, Accessible
CHPT-AC
Revision:
6.0
Date published:
31/01/2024
The Change Cubicle - Patient, Accessible provides area and amenities for patients using wheelchairs, walking aids and/or requiring assistance to change into a hospital gown or appropriate clothes prior to physical therapy, examination, diagnostic imaging, treatment, procedures or surgery, and to re-dress afterwards.
The cubicle should provide facilities for temporarily hanging clothes and a bench seat or chair for the patient to sit on whilst changing.
Room Data Sheet
Room Layout Sheet
Downloads

Archive
Find past versions of documents here
Downloads
Retired Standard Components
Retired Standard Components