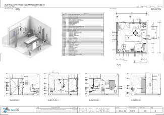
Bathroom

BATH

Revision: 
4.0
Date published: 
01/03/2016

The bathroom provides for assisted bathing of patients, patient dressing, undressing, grooming and handwashing. Facilities include a toilet, handbasin and  a separate shower within the room. A fixed island bath may be required depending on specialty (i.e. burns, paediatrics etc). The bathroom should allow for manoeuvring of a patient on a lifting device or shower trolley. Placement of the toilet should allow assistance from both sides.

 

This Standard Component has been reviewed, redocumented and reissued. These changes include findings from recent projects and post occupancy evaluations. In most cases, the changes are significant.

Room Data Sheet

Downloads
Room Data Sheet
Revision: 3.0
01/03/2016
PDF

Room Layout Sheet

Downloads
Room Layout Sheet
Revision: 4.0
01/03/2016
PDF

Project Resources

 

Archive

Find past versions of documents here

Downloads
Room Data Sheet
Revision: 4.0
20/03/2017
PDF
Room Layout Sheet
Revision: 5.0
20/03/2017
pdf
Room Data Sheet
Revision: 3.0
01/03/2016
PDF
Room Layout Sheet
Revision: 4.0
01/03/2016
pdf
Room Data Sheet
Revision: 2.0
20/05/2005
PDF
Room Layout Sheet
Revision: 3.0
17/05/2005
pdf

Retired Standard Components

Retired Standard Components

Webpage