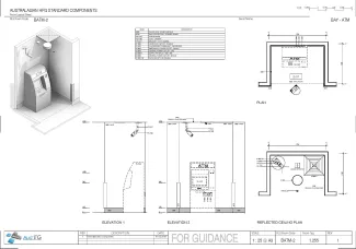
Bay - ATM

BATM-2

Revision: 
1.0
Date published: 
01/03/2016

The ATM bay will provide an area for an ATM machine. The ATM bay may be located in close proximity to a waiting area, retail precinct or within main entrance area that is not visible from outside.

This is a new Standard Component.

Room Data Sheet

Downloads
Room Data Sheet
Revision: 2.0
01/03/2016
PDF

Room Layout Sheet

Downloads
Room Layout Sheet
Revision: 1.0
01/03/2016
PDF

Project Resources

 

Archive

Find past versions of documents here

Downloads
Room Data Sheet
Revision: 2.0
01/03/2016
PDF
Room Layout Sheet
Revision: 1.0
01/03/2016
pdf

Retired Standard Components

Retired Standard Components

Webpage