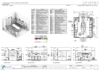
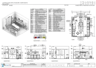
Anaesthetic Preparation Room
ANAES
Revision:
2.0
Date published:
07/05/2025
The Anaesthetic Preparation Room is for the holding and preparation of patients on a bed/trolley prior to their surgical procedure.
Room Data Sheet
Room Layout Sheet
Downloads

Archive
Find past versions of documents here
Retired Standard Components
Retired Standard Components