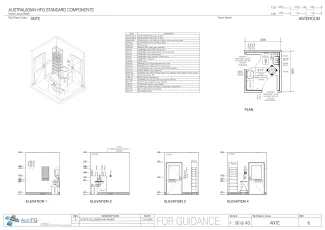
Anteroom

ANTE

Revision: 
6.0
Date published: 
15/12/2025

The Anteroom provides the space and amenities for staff and visitors to don personal protective equipment (PPE) before entering
an isolation room and to doff and dispose of PPE after exiting an isolation room.

Room Data Sheet

Downloads
Room Data Sheet
Revision: 6.0
15/12/2025
PDF

Room Layout Sheet

Downloads
Room Layout Sheet
Revision: 6.0
15/12/2025
PDF

Project Resources

 

Archive

Find past versions of documents here

Downloads
Room Data Sheet
Revision: 4.0
20/03/2017
PDF
Room Layout Sheet
Revision: 5.0
20/03/2017
pdf
Room Data Sheet
Revision: 3.0
01/03/2016
PDF
Room Layout Sheet
Revision: 4.0
01/03/2016
pdf
Room Data Sheet
Revision: 2.0
20/05/2005
PDF
Room Layout Sheet
Revision: 3.0
17/05/2005
pdf

Retired Standard Components

Retired Standard Components

Webpage