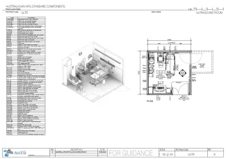
Ultrasound Room

ULTR

Revision: 
6.0
Date published: 
15/05/2025

The Ultrasound Room provides the space and amenities for sonographers to perform diagnostic ultrasound imaging on patients.

Room Data Sheet

Downloads
Room Data Sheet
Revision: 6.0
15/05/2025
PDF

Room Layout Sheet

Downloads
Room Layout Sheet
Revision: 6.0
15/05/2025
PDF

Project Resources

 

Archive

Find past versions of documents here

Downloads
Room Data Sheet
Revision: 4.0
29/05/2019
PDF
Room Layout Sheet
Revision: 5.0
29/05/2019
pdf
Room Data Sheet
Revision: 3.0
20/03/2017
PDF
Room Layout Sheet
Revision: 4.0
20/03/2017
pdf
Room Data Sheet
Revision: 2.0
01/03/2016
PDF
Room Layout Sheet
Revision: 3.0
01/03/2016
pdf
Room Data Sheet
Revision: 1.0
11/05/2006
PDF
Room Layout Sheet
Revision: 2.0
27/04/2006
pdf

Retired Standard Components

Retired Standard Components

Webpage