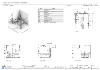
Specimen Collection Bay

SPECC

Revision: 
3.0
Date published: 
01/03/2016

A Patient Bay used for collection of specimens from patients. The Specimen Collection Bay will have close access to a staff handwashing basin.
 

This Standard Component has been redocumented. During the process, the content has undergone a quality assurance process. The overall changes are minor in nature and do not represent a significant revision.

Room Data Sheet

Downloads
Room Data Sheet
Revision: 2.0
01/03/2016
PDF

Room Layout Sheet

Downloads
Room Layout Sheet
Revision: 3.0
01/03/2016
PDF

Project Resources

 

Archive

Find past versions of documents here

Downloads
Room Data Sheet
Revision: 3.0
20/03/2017
PDF
Room Layout Sheet
Revision: 4.0
20/03/2017
pdf
Room Data Sheet
Revision: 2.0
01/03/2016
PDF
Room Layout Sheet
Revision: 3.0
01/03/2016
pdf
Room Data Sheet
Revision: 1.0
11/05/2006
PDF
Room Layout Sheet
Revision: 2.0
26/04/2006
pdf

Retired Standard Components

Retired Standard Components

Webpage