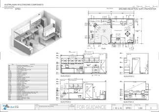
Specimen Reception / Sort / Preparation

SPREC

Revision: 
3.0
Date published: 
01/03/2016

A Reception area where specimens for analysis are received, sorted and held temporarily before despatch into laboratory areas.
 

This Standard Component has been redocumented. During the process, the content has undergone a quality assurance process. The overall changes are minor in nature and do not represent a significant revision.

Room Data Sheet

Downloads
Room Data Sheet
Revision: 2.0
01/03/2016
PDF

Room Layout Sheet

Downloads
Room Layout Sheet
Revision: 3.0
01/03/2016
PDF

Project Resources

 

Archive

Find past versions of documents here

Downloads
Room Data Sheet
Revision: 2.0
01/03/2016
PDF
Room Layout Sheet
Revision: 3.0
01/03/2016
pdf
Room Data Sheet
Revision: 1.0
08/06/2007
PDF
Room Layout Sheet
Revision: 2.0
08/06/2007
pdf

Retired Standard Components

Retired Standard Components

Webpage