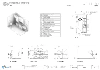
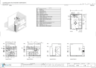
Pantry
PTRY
Revision: 
				6.0
				Date published: 
				
						31/01/2024
					
				The Pantry is for staff preparing and/or heating refreshments and snacks for patients, washing utensils and crockery or temporarily storing dirty items for collection, storing food and drink and disposing of food waste. This room may be shared between multiple units depending on service requirements.
Additional Considerations:
- If food re-thermalisation trolleys are to be located in this room during meal times an additional 2m2 per trolley will be required as well as appropriate power outlets. Refer to Bay - Meal Trolley (BMT) for requirements.
- Local food preparation regulations and infection control policies may require a Type B hand wash basin, separate to the sink, to be included in the room or may allow for it to be located nearby.
- Fridge dimensions will vary depending on selection and service requirements; clear area provided for the fridge is to allow for adequate ventilation and full opening of door. Where double door fridges are provided, additional area will be required.
- If an instantaneous boiling water tap/unit is provided, access should be restricted to the water unit e.g. within a cupboard. If system is located within a joinery unit, ensure appropriate ventilation is provided.
- Provision and type of ice machine will be dependent on service requirements and local infection prevention and control policies. Where ice machine is provided, ensure adequate support to bench for weight of appliance.
- Where tea service is provided the height of the hot water dispenser is to be considered to ensure large kettles can be filled easily.
- Size, type and quantity of waste bins is dependent on environmental management policies and service requirements. Where a facility has additional waste streams, beyond the general waste and comingled recycling streams indicatively shown in this Standard Component, additional area may be required to accommodate the receptacles. Depending on frequency of waste removal and anticipated traffic, bin sizes may be larger in high use areas or as guided by local waste management policies. Joinery to conceal bins may be provided depending on infection prevention and control policies.
- Storage of nutritional supplements may require a lockable cupboard and will be dependent on service requirements.
- Temperature of fridge may need to be monitored. A data outlet, or alternative connection to suit project/equipment requirements, may be required for connection the Building Management System (BMS) depending on service requirements.
- Controlled, staff-only access may be required if this room is provided in a public or patient care area.
Room Data Sheet
Room Layout Sheet
Downloads
 
  Archive
Find past versions of documents here
Downloads
Retired Standard Components
Retired Standard Components
 
       
		