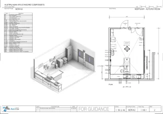
Mortuary - Autopsy Room

MOR-AU

Revision: 
2.0
Date published: 
01/03/2016

Room for undertaking post mortem examinations. The autopsy room should be located adjacent to the body cool store and have ready access to a clean-up area.
 

This Standard Component has been redocumented. During the process, the content has undergone a quality assurance process. The overall changes are minor in nature and do not represent a significant revision.

Room Data Sheet

Downloads
Room Data Sheet
Revision: 2.0
01/03/2016
PDF

Room Layout Sheet

Downloads
Room Layout Sheet
Revision: 2.0
01/03/2016
PDF

Project Resources

 

Archive

Find past versions of documents here

Downloads
ROOM DATA SHEET
Revision: 3.0
20/03/2017
PDF
ROOM LAYOUT SHEET
Revision: 3.0
20/03/2017
pdf
Room Data Sheet
Revision: 2.0
01/03/2016
PDF
Room Layout Sheet
Revision: 2.0
01/03/2016
pdf
Room Data Sheet
Revision: 1.0
08/06/2007
PDF
Room Layout Sheet
Revision: 1.0
15/06/2005
pdf

Retired Standard Components

Retired Standard Components

Webpage