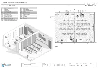
Meeting Room, 55m2

MEET-L-55

Revision: 
1.0
Date published: 
01/03/2016

This Meeting Room will provide videoconferencing facilities for staff and client meetings. It is a multipurpose room also used for training or educational purposes. An operable wall will allow the room to be sub-divided, so that two separate meetings can be run simultaneously.

This is a new Standard Component.

Room Data Sheet

Downloads
Room Data Sheet
Revision: 1.0
01/03/2016
PDF

Room Layout Sheet

Downloads
Room Layout Sheet
Revision: 1.0
25/02/2016
PDF

Project Resources

 

Archive

Find past versions of documents here

Downloads
Room Data Sheet
Revision: 2.0
20/03/2017
PDF
Room Layout Sheet
Revision: 2.0
20/03/2017
pdf
Room Data Sheet
Revision: 1.0
01/03/2016
PDF
Room Layout Sheet
Revision: 1.0
25/02/2016
pdf

Retired Standard Components

Retired Standard Components

Webpage