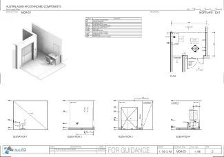
Mortuary - Exit

MOR-EX

Revision: 
2.0
Date published: 
01/03/2016

Exit from Mortuary cool store area to the loading dock area. Entry to this area by authorised staff. Handwashing facilities should be located in close proximity. This area may include a observation bay for autospy room if required.

This Standard Component has been redocumented. During the process, the content has undergone a quality assurance process. The overall changes are minor in nature and do not represent a significant revision.

Room Data Sheet

Downloads
Room Data Sheet
Revision: 2.0
01/03/2016
PDF

Room Layout Sheet

Downloads
Room Layout Sheet
Revision: 2.0
01/03/2016
PDF

Project Resources

 

Archive

Find past versions of documents here

Downloads
ROOM DATA SHEET
Revision: 3.0
20/03/2017
PDF
ROOM LAYOUT SHEET
Revision: 3.0
20/03/2017
pdf
Room Data Sheet
Revision: 2.0
01/03/2016
PDF
Room Layout Sheet
Revision: 2.0
01/03/2016
pdf
Room Data Sheet
Revision: 1.0
08/06/2007
PDF
Room Layout Sheet
Revision: 1.0
05/05/2005
pdf

Retired Standard Components

Retired Standard Components

Webpage