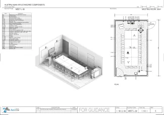
Meeting Room, 30m2

MEET-L-30

Revision: 
5.0
Date published: 
01/03/2016

A multipurpose room providing facilities for staff meetings, training/education and patient group activities.

This room may also accommodate other meetings such as:

  • those held with the visiting Magistrate Review Hearings in mental health units. Refer to AusHFG mental health HPUs for specific requirements.
  • telehealth providing video-conferencing facilities for staff and client meetings.

The room may be located in close proximity to a beverage bay and storage.

This Standard Component has been reviewed, redocummented and reissued. The changes include findings from recent project and post occupancy evaluations. In most cases, the changes are significant.

Room Data Sheet

Downloads
Room Data Sheet
Revision: 4.0
01/03/2016
PDF

Room Layout Sheet

Downloads
Room Layout Sheet
Revision: 5.0
01/03/2016
PDF

Project Resources

 

Archive

Find past versions of documents here

Downloads
ROOM DATA SHEET
Revision: 5.0
20/03/2017
PDF
ROOM LAYOUT SHEET
Revision: 6.0
20/03/2017
pdf
Room Data Sheet
Revision: 4.0
01/03/2016
PDF
Room Layout Sheet
Revision: 5.0
01/03/2016
pdf
Room Data Sheet
Revision: 3.0
01/04/2009
PDF
Room Layout Sheet
Revision: 4.0
10/12/2008
pdf

Retired Standard Components

Retired Standard Components

Webpage