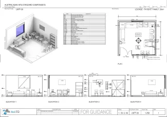
Lounge - Patient/ Family, 20m2

LNPF-20

Revision: 
1.0
Date published: 
01/03/2016

The Lounge - Patient/ Family provides an alternate environment away from clinical areas for patients and visitors can visit and socialise. An external outlook is desirable.

This is a new Standard Component.

Room Data Sheet

Downloads
Room Data Sheet
Revision: 1.0
01/03/2016
PDF

Room Layout Sheet

Downloads
Room Layout Sheet
Revision: 1.0
01/03/2016
PDF

Project Resources

 

Archive

Find past versions of documents here

Downloads
Room Data Sheet
Revision: 2.0
20/03/2017
PDF
Room Layout Sheet
Revision: 2.0
20/03/2017
pdf
Room Data Sheet
Revision: 1.0
01/03/2016
PDF
Room Layout Sheet
Revision: 1.0
01/03/2016
pdf

Retired Standard Components

Retired Standard Components

Webpage