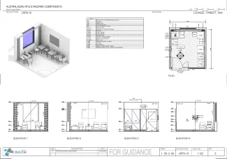
Lounge - Parent, 12m2

LNPA-12

Revision: 
3.0
Date published: 
01/03/2016

The parent lounge provides a change of environment away from clinical areas for family and close friends to patients in selecetd areas of the hospital. An external outlook is desirable.
 

 

This Standard Component has been redocumented. During the process, the content has undergone a quality assurance process. The overall changes are minor in nature and do not represent a significant revision.

Room Data Sheet

Downloads
Room Data Sheet
Revision: 4.0
01/03/2016
PDF

Room Layout Sheet

Downloads
Room Layout Sheet
Revision: 3.0
01/03/2016
PDF

Project Resources

 

Archive

Find past versions of documents here

Downloads
Room Data Sheet
Revision: 4.0
01/03/2016
PDF
Room Layout Sheet
Revision: 3.0
01/03/2016
pdf
Room Data Sheet
Revision: 3.0
01/04/2009
PDF
Room Layout Sheet
Revision: 2.0
10/12/2008
pdf

Retired Standard Components

Retired Standard Components

Webpage