Interview Room - Mental Health

INTV-MH

Revision: 
2.0
Date published: 
21/08/2025

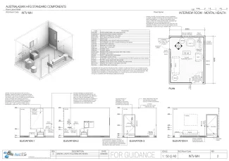
The Interview Room - Mental Health (may be referred to on projects as a Dialogue Room) provides the space and amenities for interviews, counselling, collaborative care planning and small support network discussions.

Room Data Sheet

Downloads
Room Data Sheet
Revision: 2.0
21/08/2025
PDF

Room Layout Sheet

Downloads
Room Layout Sheet
Revision: 2.0
21/08/2025
PDF

Project Resources

 

Archive

Find past versions of documents here

Downloads
Room Data Sheet
Revision: 1.0
04/07/2018
PDF
Room Layout Sheet
Revision: 1.0
04/07/2018
pdf

Retired Standard Components

Retired Standard Components

Webpage