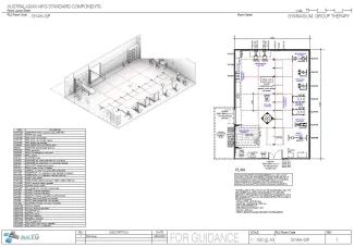
Gymnasium, Group Therapy

GYAH-GP

Revision: 
1.0
Date published: 
27/04/2021

The Gymnasium - Group Therapy provides space and facilities for patient evaluation, rehabilitation exercise activities, therapy and ambulation training in a group setting.

An open area is typically provided for aerobic/movement exercises and may also provide space for group debriefing, discussion and education after sessions. An external outlook and ready access to outdoor areas is desirable.  The range of specialised exercise equipment, open exercise areas and number of clients / patients to be accommodated within a gymnasium will vary from unit to unit and will require confirmation to inform overall space requirements.

Additional Design Requirements:

  • RCD protection is required to body protected areas in accordance with AS/NZS3003. Quantity and location dependent on selected equipment and circuiting arrangements.

Room Data Sheet

Downloads
Room Data Sheet
Revision: 1.0
27/04/2021
PDF

Room Layout Sheet

Downloads
Room Layout Sheet
Revision: 1.0
27/04/2021
PDF
Gymnasium Components Clearance and Circulation Guidance
Revision: 1.0
27/04/2021
PDF

Project Resources

 

Archive

Find past versions of documents here

Downloads

Retired Standard Components

Retired Standard Components

Webpage